編輯:2020第十五屆溫州(金鷹)泵閥展覽會
日期:2020-06-10 訪問:4600

摘要:針對延遲焦化裝置輻射進料泵串聯機械密封故障率高的情況,對進料泵機封腔與機械密封結構分別進行分析。結合介質溫度高、黏度大的特點,通過技術改造解決了進口輻射進料泵機械密封運行壽命短的問題,保證裝置安全、穩定運行。
前言
輻射進料泵是金陵石化公司185kt/a焦化裝置的核心設備。常減壓裝置的減壓塔底部抽出的渣油,經過換熱器換熱至320℃,由輻射進料泵輸送至燃燒爐輻射室,再加熱輸送至焦炭塔。輻射進料泵自機封型式由單端面改為串聯后,運行中泵出口側機封第一道密封頻繁出現泄漏故障,機封的使用壽命不超過3000h。由于介質黏度大、溫度高,機封一旦出現泄漏故障,會污染裝置現場且存在較大安全隱患,增加檢維修費。
1.機泵結構及機封改造歷史
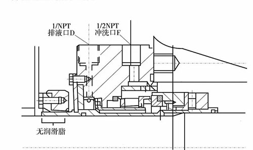
輻射進料泵型號RON-D8X16,流量322m3/h,揚程400m,入口壓力(0.15~0.42)MPa(表壓);兩級葉輪,首級葉輪為雙吸結構,出口葉輪為封閉式單吸葉輪;機封腔設置有平衡管,接泵入口減壓。
該泵出廠時機封為單端面波紋管機封,使用PLAN32+62沖洗方案。2012年,為滿足中石化高溫熱油泵管理要求,提高機封的安全性及可靠性,改為串聯式波紋管機械密封,使用PLAN32+53A沖洗方案。
2.密封失效原因分析
機封改為PLAN32+53A串聯密封后,使用不到3000h,第一道密封泄漏,壓力罐液位降低,故障出現在泵出口端側密封,入口端未出現問題。解體失效機封,發現密封端面受損,有明顯磨損痕跡。
在機泵運行中觀察到,密封沖洗油壓力表波動頻繁,正常使用0.6MPa密封沖洗油,會間斷性上升至(0.8-0.9)MPa,證明機封腔壓力存在波動,導致封油壓力低于機封腔壓力,沖洗油無法注入機封腔,機封腔內無法穩定形成潔凈、低溫運行工況。端面在高溫、粘稠、含焦粉等環境下運行,加劇機封損壞,使密封過早失效。
(1)機封結構分析
改造前機泵原裝密封為約翰克蘭的單端面波紋管機械密封,設計為PLAN32+PLAN62的沖洗方案,沖洗液壓力為裝置內80℃蠟油,壓力為0.8MPa;PLAN62方案中靜環座提供背冷的介質為160℃蒸汽(圖1)。

圖1
機封腔壓力平衡設計有平衡孔與平衡管:一是機封腔上方設計有平衡管與泵入口相連;二是通過二級葉輪入口部位通過喉部襯套與泵體的徑向節流作用,降低密封腔壓力,保證沖洗液有一定流量進入機封腔,達到沖洗雜質、降低端面溫度的目的。
改造后機封為串聯式帶壓機封結構(圖2),采用PLAN32+53A的沖洗方案。一級密封PLAN32在介質側密封引入蠟油沖洗,給密封腔降溫的同時防止高溫介質中的焦粉進入密封端面。

圖2
二級密封PLAN53A方案在儲罐內之間加入46#白油,儲罐用中壓氮氣加壓,保持儲罐內隔離液壓力高于密封腔壓力(0.14~0.41)MP.,隔離液通過熱虹吸及二級機封泵送裝置建立循環,通過儲罐的冷卻盤管從而抑制二級密封的溫升[1]。
改造后串聯式帶壓機封結構優點是:一旦一級密封失效發生泄漏,隔離液壓力高于介質壓力,隔離液會流向泵內,密封變為單端面密封,儲罐低液位或低壓報警,操作員有足夠時間判斷密封失效、采取措施;如果二級失效泄漏,隔離液泄漏到大氣中,密封變為承受反壓的單端面機封,不會發生介質泄漏。這時儲罐低液位或壓力報警,給操作員足夠時間停泵切換。
密封改造后有以下區別:一是PLAN32+53A機封設計結構為內側機封承受儲罐內封液壓力高于密封腔壓力,不能承受密封腔壓力高于儲罐封液壓力;二是考慮到在高溫工況更加穩定,使用靜止型波紋管機封,第一級端面距離沖洗液較單端面機封更遠。
(2)離心泵結構影響分析
1)喉部襯套檢查情況
首先要排除喉部襯套磨損導致機封腔壓力過高的情況。因為介質經喉部襯套節流后壓力依然較高,將直接導致密封腔壓力過高,超過沖洗壓力后渣油將倒竄人沖洗管路,沖洗液發揮不了沖洗冷卻作用。檢修時測量喉部襯套外徑95.48mm,泵體內徑96.05mm,間隙為0.57mm,均在標準范圍內,且肉眼觀察磨痕很少,所以排除喉部襯套磨損導致機封腔壓力變高的因素(圖3)。

圖3
2)離心泵機封腔結構分析
輻射進料泵為兩級葉輪,首級葉輪為雙吸結構,機封腔設置有平衡管回人口減壓。機泵大修時檢查機封腔發現,機封腔有一平衡沖洗孔由二級人口至機封腔,尺寸Φ5mm(圖4),且平衡管開口在機封腔的正上方(圖5)。

圖4

圖5
通過綜合分析,得出以下結論:
改造后的機封第一道密封端面在平衡管開口的正下方,導致PLAN32注入的沖洗液直接從平衡管排走,起不到沖洗與降溫作用,且機封腔平衡孔大量的渣油進人機封腔從平衡管循環流動,導致第一道密封運行環境非常惡劣,同時由于機泵運行工藝參數波動,大大影響第一道密封的運行壓力,甚至導致反壓(圖6)。

圖6
而未改造前的單端面密封,由于密封較短、機封端面靠外側遠離高溫介質,PLAN32沖洗不受平衡管處流體的影響,且單端面機封對機封腔壓力變化不敏感,在保證沖洗通暢的基礎上,機封運行良好。
3.機封改造方案
分析認為,故障主要原因是改造后機封與原機封腔不匹配、導致機封運行環境惡劣。因此,要從保證PLAN32沖洗液順暢入手,保證第一道密封端面的運行環境。因為機泵機封腔平衡孔位置無法更改,只能改進機封設計,來保證第一道密封運行在設計環境下。
(1)機封增加節流環
第一道機封處增加節流環,以使得平衡管與PLAN32液體分離(圖7),使得PLAN32沖洗液不受上方平衡管開口流體的影響,保證第一道密封的運行環境。為保證節流環對沖洗液沒有節流效果,對節流環的尺寸進行了核算,保證第一道密封的沖洗液的流量。

圖7
PLAN32沖洗液F孔尺寸Φ10mm;面積78.5mm2;F孔處腰形狀分布孔面積113.04mm2;節流環內徑Φ129.5mm;密封動環座外徑Φ128mm。故最小環帶面積為303.2mm2。
根據以上計算,從沖洗液F孔Φ10mm開始,面積逐漸增大,所以不存在節流情況。節流環設計可以保證沖洗液通暢流動。
(2)改變輔助系統參數
由原機封設計圖紙機封腔壓力波動范圍為(0.15~0.8)MPa,因此適當提高PLA)32封油壓力至0.9MPa,保證機封端面不受反壓,增加53A氮氣壓力較沖洗液壓力大(0.2~0.4)MPa。同時為更好地監控沖洗流量,保證沖洗正常,更換原沖洗液流量計,使得運行有效監控。
4.結語
研究機封失效現象,從機封結構與機泵構造2個方面進行原因分析,得出機封失效的根本原因。通過技術改造增加機封節流環,改造后沖洗蠟油能完全通過節流環對機封端面進行沖洗,保證密封端面在清潔、溫度適宜的設計工況下運行。不僅延長了密封的使用壽命,有效緩解機封故障,而且提高平時操作和維護的安全系數,減輕對周圍環境的污染,保證裝置安穩長運行。
2024第十九屆溫州國際泵閥管道展覽會邀請函 |
|||||||||||||||||||||
|
|||||||||||||||||||||
|
||||||||||||||