編輯:上海雙高閥門集團有限公司
日期:2020-08-24 訪問:4245
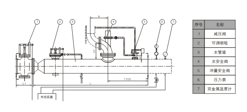
次高壓減溫減壓裝置用途及簡述
一、用途:
本裝置將新蒸汽的壓力p1和溫度t1(P1≤5.4MPa t1≤485℃)降低到用戶需要的各種壓力p2和溫度t2要求。
二、系統簡述:
本裝置由減壓系統,減溫系統,安全保護裝置和自動控制裝置所組成。
減壓系統—由減壓閥和節流孔板通過執行機構來實現。
減溫系統—采用通過帶有執行機構的,可調噴咀噴水減溫方式來實現蒸汽溫度的調節。
安全保護裝置—是直接采用沖量安全裝置(由主安全閥和沖量安全閥組成)或彈簧安全閥來實現,當二次壓超過規定值時,將壓力超過
部分的蒸汽排向大氣,從而使二次壓力保持在允許值內。
自動控制裝置—配用我廠生產的RKG—□□□□型蒸汽壓力、溫度控制裝置,新蒸汽通過本裝置能使二次蒸汽參數保持在所需的穩定值。
三、訂貨須知:
1. 產品名稱:次高壓減溫減壓裝置
2. 簽訂合同必須寫明下列參數:流量Q(即減溫減壓后流量);一次蒸汽壓力p1,溫度t1;二次蒸汽壓力p2,溫度t2;減溫水壓
力Pb(Pb≥P2+0.5MPa))減溫水溫度tb。
3. 控制方式:按需要選擇自動控制裝置的型號。
4. 對于二次蒸汽質量要求較高的使用場合,二次蒸汽溫度應大于飽和溫度5~10°。
5. 按用戶需要可接受特殊訂貨。
6. 圖中標志
為本廠供貨范圍。
次高壓減溫減壓裝置系列總圖(一套沖量安全閥)

注:本公司可提供角行程執行機構亦可提供直行程、氣動或其它執行機構。
次高壓減溫減壓裝置系列總圖(二套沖量安全閥)

注:本公司可提供角行程執行機構亦可提供直行程、氣動或其它執行機構。
地 址:上海市松江葉榭工業區葉旺路雙高工業區
電 話:021-57802222 67801100 67801122 67801266
傳 真:021-67801267 67801268
http://www.shuanggao.com
E-mail:sales@shuanggao.com
上海雙高閥門(集團)有限公司 |
|||||||||||||||||||||
|
|||||||||||||||||||||
|
||||||||||||||